第一恒産株式会社

朝日プラザ北一番町 コンビニ倉庫

キャンペーン
対象ルーム キャンペーン内容
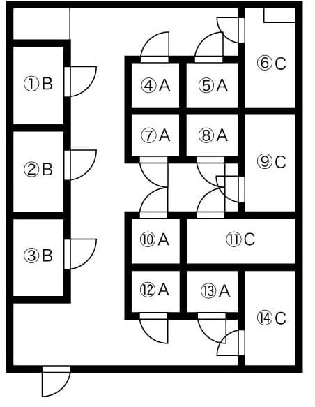
Aタイプ
4号室
一年間半額!!
8,500円+税 ⇒ 4,250円+税

2026年3月31日まで申込み分対象の期間限定キャンペーンです。

当社ホームページから問合せの方限定!
お問い合わせボタンよりお申し込みください!

資料ダウンロード タイプ 賃料 広さ 大きさ
Aタイプ 8,500円+税 1.44㎡ 約1.2m×約1.2m
Bタイプ 11,000円+税 2.50㎡ 約1.25m×約2.0m

トランクルーム (タイプ・間取り)

間取り図

セキュリティ付 貸室内トランクルーム

第一恒産ならではの4つの特徴

0124時間出入自由

いつでも自由に出入可能です

02無料台車完備

トランクルーム内に台車を設置しておりますので、荷物の運搬にご利用いただけます

031階部分で出入スムーズ

重い荷物の移動も楽です

04スチールラック付き

3段になっており色々な物を置くことが可能です
※Bタイプ No.2のみ(+500円)

頼れるセキュリティ

防犯カメラ、警備会社(SENON)などの設備により、24時間365日対応可能な体制を取っています。

サイズ

Bタイプ

ご契約の流れ

STEP1
電話・メール受付

ご希望物件を実際に内覧いただけます。
ご希望の日時、物件をご予約ください。

STEP2
ご内覧

予約当日は当社スタッフにて現地ご案内させていただきます。
ご内覧いただき実際の雰囲気をご確認ください。

STEP3
お申込み

ご契約の際、当社指定の保証会社をご利用いただきます。
保証会社申込書に必要事項をご記入いただき、身分証(免許証・保険証)のコピーをご提出ください。

STEP4
ご契約

当社及び保証会社の書類審査が承認となりましたら、契約手続きとなります。
トランクルーム契約書・保証会社契約書の取交し及び契約金のご入金をいただき、手続き完了です。

STEP5
ご使用開始

契約開始日よりご利用いただけます。
入口と個別ルームキー、警備会社警備設定キーをお渡しいたしますので、24時間自由に出し入れ可能となります。

使用例 Bタイプ

使用例Bタイプ

ご利用方法

【写真の収納物】
 タイヤ8本、段ボール12個、ゴルフバック、草刈り機

【例えばこんなものも収納可能】
 スタットレスタイヤ
 ゴルフバック
 スキー、スノーボード
 スーツケース
 ひな人形
 ベビーカー、ジュニアシート
 法人様の保管書類

物件のお問い合わせはこちら

受付時間:9:00〜18:00(水・日・祝除く)

022-262-2121

お問い合わせフォーム

  • 物件データ
  • アクセス
[所在地]
宮城県仙台市青葉区木町通1丁目1-1
[使用可能時間]
365日 24時間
[防犯]
24時間警備システムの導入
[敷金・礼金・仲介手数料]
なし
[賃貸保証会社加入]
初回保証料 賃料1か月分
講座振替システム利用料440円/月

物件のお問い合わせはこちら

受付時間:9:00〜18:00(水・日・祝除く)

022-262-2121

お問い合わせフォーム